티스토리 뷰

서울 DMC 가재울 아이파크 특별공급 떴습니다!!
이제 특별공급 공지가 떴으니 5월 중 곧 일반분양도 진행될 예정입니다. 관심이 있으신 분들은 사전에 자금계획을 세우시고 내 집 마련의 기회를 놓치지 마시기 바랍니다.
HDC현대산업개발이 서대문구 남가좌동 가재울 8 구역 재개발을 통해 ‘DMC 가재울 아이파크’를 분양할 계획입니다. DMC 가재울 아이파크는 지하 3층에서 지상 27층까지 총 3개 동으로 전용면적 59∼84㎡ 총 283 가구 규모로 지어집니다.
교통은 지하철 경의중앙선 가좌역이 걸어서 5분 거리에 있어서 광화문과 여의도, 상암 디지털미디어시티(DMC), 신촌 등에 30분 이내로 이동이 가능합니다. 주변인프라는 차로 10분 거리에 이마트, 홈플러스 등 대형마트가 있어 편리한 생활이 가능합니다.
<서울 DMC 가재울 아이파크 입지>

<서울 DMC 가재울 아이파크 배치도>

서울 DMC 가재울 아이파크는 가재울 8 구역 주택 재개발사업으로 진행되며 총세대수는 283세대로 작지만 가재울 정비사업으로 진행되며 서대문구 남가좌동과 북과자동에 위치한 뉴타운 사업으로 완성 시 약 1만 이천세대의 뉴타운이 됩니다.
<서울 DMC 가재울 아이파크 특별공급 공고>

*. 서울 DMC 가재울 아이파크 공고는 위 이미지를 클릭하면 해당 사이트로 이동합니다.
<출처: 경기도청(바로가기 링크)>
<특별공급 관련 서식 및 건설사 안내문은 아래 첨부파일 참조>
<청약통장 예치금액>


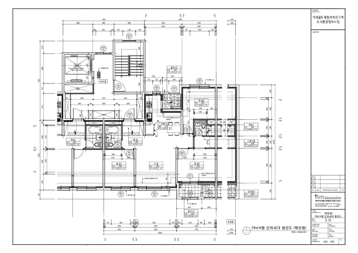
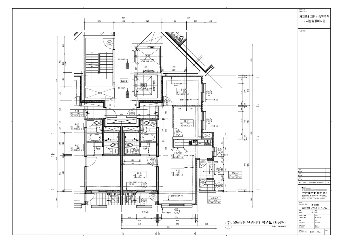
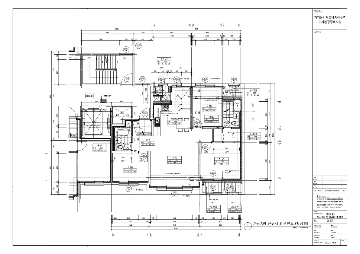
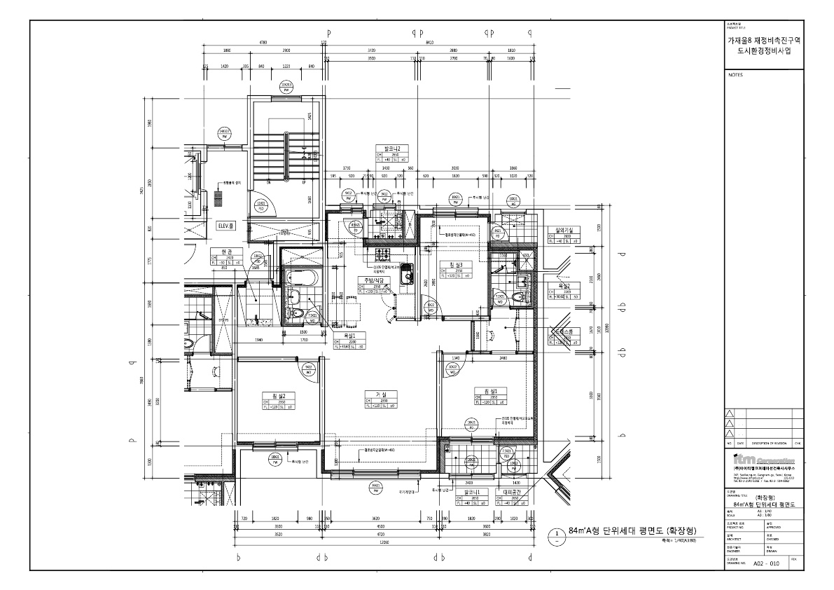
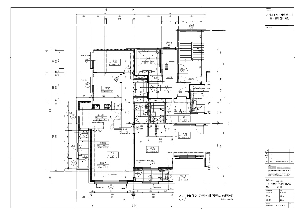
<5가지 타입의 평형 구조>
*. 출처: 가재울8 재정비촉진구역 재개발정비사업조합(바로가기 링크)





서울 DMC 가재울 아이파크 예상 분양가는 평당 3천만 원가량을 예상하고 있습니다. 최근 서울 아파트 시세가 바닥을 찍고 반등하는 추세로 다시 떨어지며 W 구간이 될 수도 있지만 가재울의 입지와 역량 있는 브랜드 아파트로 관심을 가지고 내 집마련과 투자의 기회로 잘 검토해 보시기 바랍니다.
'자기계발(돈)' 카테고리의 다른 글
| 경매에서 낙찰받은 아파트 관리비는 누가 부담할까? (0) | 2023.05.18 |
|---|---|
| 경매 당해세 뜻 (0) | 2023.05.08 |
| 부동산 등기부등본에서 주의할 단어 5가지 (2) | 2023.05.05 |
| 잃지 않는 투자란? (0) | 2023.05.04 |
| 전입신고일과 확정일 구분하기 (0) | 2023.05.03 |